La Arquitectura inclusiva tiene en cuenta los espacios disponibles y equipamiento para integrar a trabajadores minusválidos dentro de las empresas, como trabajadores muy válidos a ocupar puestos de trabajo dentro del equipo.
Trabajar por la inclusión es adaptar las oficinas para que sean un lugar de trabajo con cabida para todas las personas.
La Ley 3/1998 del 24 de junio es muy clara. Establece la obligación gradual y progresiva de crear entornos accesibles y practicables para todos.
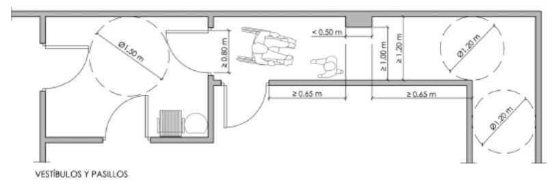
- Espacios: evita las oficinas estrechas y elimina los elementos que no sean esenciales. Las señales y sistemas de alarma se colocarán a una altura que puedan ser vistos por todas las personas, con un correlato auditivo, visual y táctil perceptibles para todos.
- Accesos: sustituye los escalones por una rampa, también puedes instalar ascensores. Existe una amplia gama de elevadores discretos, elegantes y económicos, con tecnología única de doble raíl que permite que su instalación sea rápida y muy fácil.
- Puertas: las puertas deben tener un ancho suficiente que permita la entrada de sillas de ruedas, con asadero vertical y alargado. Existe la opción del motor que es accionado fácilmente a través de pulsador.
- Ruido: usa paneles absorbentes, moqueta en suelos y algunos materiales de revestimiento en paredes y tabiques, ayudarán a mejorar la acústica del entorno, mejorará la reverberación y facilitarás la comunicación sobre todo para las personas con limitaciones auditivas.
- Mobiliario: deberá ser funcional que se adapte a las necesidades, cómodo, seguro y accesible para todos, teniendo en cuenta las alturas. Opta por mesas, cajoneras y sillas con un amplio rango de ajustes. Una mesa regulable en altura, amplia y con vigas estructurales que no entorpezcan la entrada de una silla de ruedas. Armarios mejor si son de puertas correderas. Los archivos móviles y abiertos son ideales, requieren menos esfuerzo para acceder a la documentación y aprovechan más el espacio. Busca mostradores de atención personalizada que cumplan con las medidas reglamentarias para la atención a personas con movilidad reducida.
El diseño universal tiene como finalidad crear entornos que puedan ser utilizados por todos los usuarios, ya sean altos, bajos, obesos, zurdos, diestros, discapacitados, adultos mayores, jóvenes…
La integración laboral demuestra su impacto positivo tanto en el aspecto humano como en el económico. Mejora la imagen de la empresa ante los clientes, competidores y ante la sociedad en general.
PAPIER da vida a tus proyectos y para todos
































